preloaderlogo

Full Design

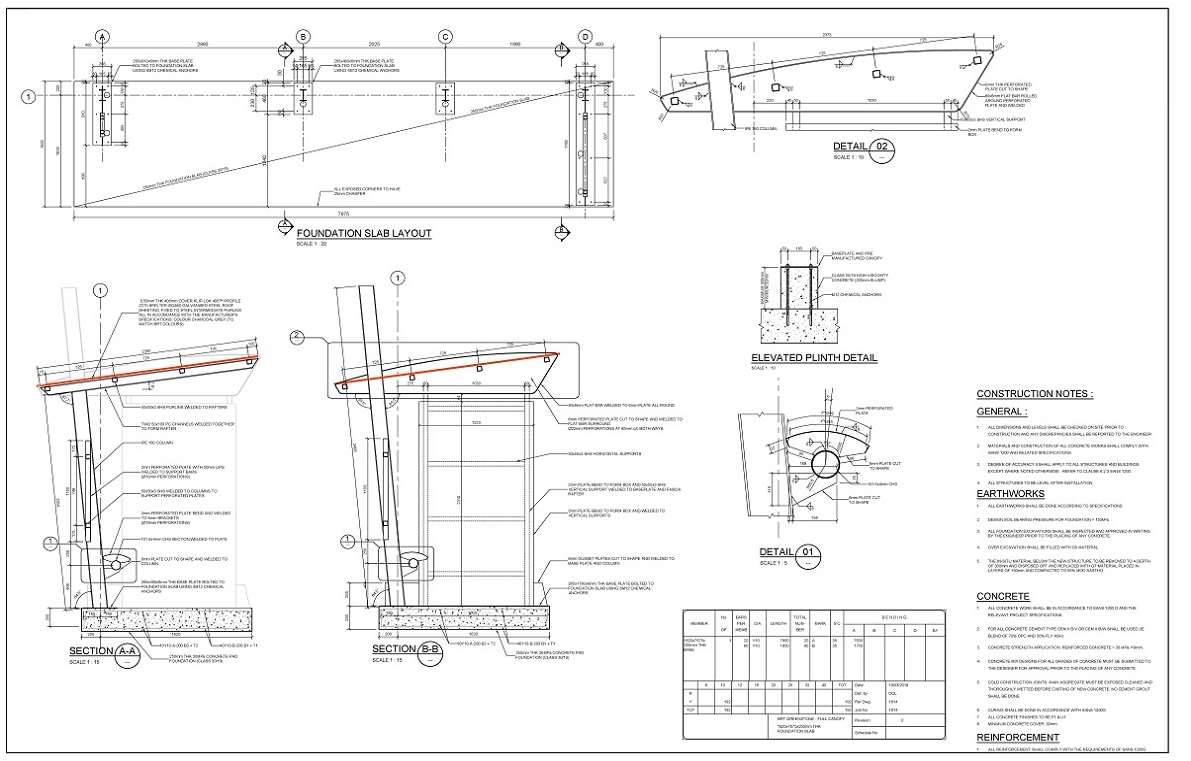
S.D.E provides steelwork design and drawing services, utilizing the latest StruCad 3D modelling software to ensure an accurate and efficient design process